
Teren cu autorizație de construcție – zonă Calea Chișinăului, Iași
Vă oferim spre vânzare un teren intravilan cu autorizație de construcție situat în zona Calea Chișinăului, în imediata apropiere de Egros și Fancurier.
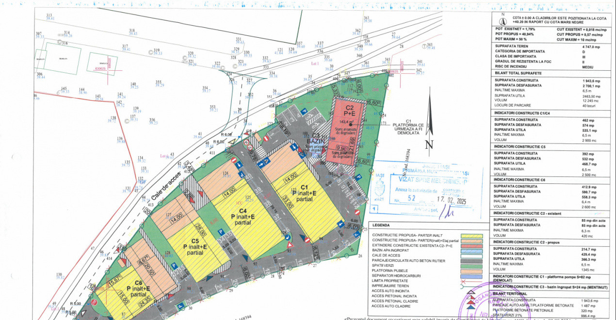
Proprietatea dispune de o autorizare pentru 5 hale cu:
Suprafață la sol: 1.943 mp
Suprafață totală desfășurată: 2.700 mp
Suprafață utilă: 2.463 mp
Terenul are o suprafață totală de 4.747 mp și beneficiază de toate utilitățile disponibile.
În paralel, este în derulare un Plan Urbanistic Zonal (PUZ) pentru construirea unui imobil mixt cu regim de înălțime 2S + P + 11 + Etaj tehnic, având următorii indicatori urbanistici:
POT: 45%
CUT: 4
Spații verzi: 20%
PUZ aflat în curs de aprobare în Consiliul Local Iași.
💰 Preț de vânzare: 1.000.000 €
✅ Comision 0% pentru cumpărător
Pentru mai multe detalii sau pentru a stabili o vizionare, contactați-ne acum!